Edificio Multifamiliar en c/ Muñoz Torrero 4 - Madrid - España
Colaboración con Maroto e Ibáñez Arquitectos año: 2006 S = 1.590 m2
Situado en el centro de Madrid, junto a la Gran Vía, este edificio de departamentos y estudios libera la planta baja abriéndola a la calle y al jardín trasero del patio del lote. Se plantea el acceso como un amplio vestíbulo urbano abierto.
Los apartamentos y estudios hacia la calle se iluminan con amplios huecos protegidos con petos de vidrio, como interpretación de los balcones tradicionales.
En la fachada trasera al jardín los huecos se abren con grandes acristalamientos para ganar iluminación y vistas. En la planta ático se retranquea el tejado apareciendo terrazas sobre la fachada.
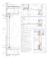
La comunicación vertical se resuelve con una escalera exterior que se asoma al jardín.
Debido a las dimensiones del terreno, el acceso al aparcamiento en sótanos se soluciona mediante un montacoches abierto al vestíbulo de entrada, permitiéndonos ampliar el número de plazas de dotación para cada vivienda.






